生活利便性の良いエリアに位置する6DKの中古住宅♪
屋根は菊間瓦へ新しく交換済みで、柱にはヒノキ材を使用したしっかりした造りが魅力です(^^)/
外観
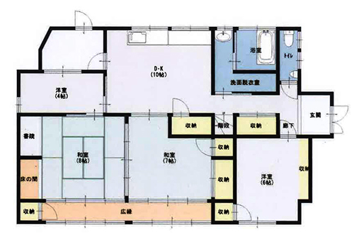
1階間取図
2階間取図
航空写真
外観
エントランス
キッチン
洗面
バス/シャワー
トイレ
1階洋室
1階和室
1階和室
1階縁側
2階和室
2階和室
勝手口(外側)
外部トイレ
車庫
北西側水路
ハローズ東予店
ファミリーマート西条円海寺店
ディスカウントドラッグコスモス東予店
西条市立東予東中学
西条市立壬生川小学校
認定こども園たから幼稚園
西条市立周桑病院
伊予銀行壬生川支店| 価格 | 580万円 |
|---|---|
| 物件種目 | 中古一戸建て |
| 所在地 | 西条市円海寺 |
| 交通 | JR予讃線 壬生川駅 徒歩16分 |
| 建物面積 | 141.84m²(42.91坪) |
| 土地面積 | 公簿 351.12m²(106.21坪) |
| 間取り | 6DK |
| 築年月 | 1973年12月(築52年) |
| 階建 | 2階建 |
| 建物構造 | 木造 |
| 土地権利 | 所有権 |
| 都市計画 | 非線引 |
| 用途地域 | 1種住居 |
| 接道状況 | 北東 3.0m 公道 接面24.0m |
| 建ぺい率 | 60% |
| 容積率 | 200% |
| 地目 | 宅地 |
| セットバック | 要 |
| バス・トイレ | 浴室に窓あり |
| キッチン | システムキッチン |
| 設備 | 上水道、下水道、エアコン、庭、照明器具 |
| 特記事項 | 駐車場2台分 |
| 現況 | 空き |
| 引渡可能時期 | 相談 |
| 周辺環境 | [ショッピング施設] ハローズ東予店まで1,345m [コンビニ] ファミリーマート西条円海寺店まで150m [販売店] ディスカウントドラッグコスモス東予店まで1,074m [中学校] 西条市立東予東中学校まで1,734m [小学校] 西条市立壬生川小学校まで746m [幼稚園、保育園] 認定こども園たから幼稚園まで1,038m [病院] 西条市立周桑病院まで300m [銀行] 伊予銀行壬生川支店まで1,310m |
| 取引態様 | 専任媒介 |